现代轻奢已经普遍为广大的中产阶层垂青,叠墅作为近几年风靡的业态成为了众多新贵人群的爱。本套住宅的业主为知名金融公司高管,管理着上百人的团队,参与设计别墅的当期,又恰逢成为了三胎妈妈,设计师在充分了解到该业主需求后做了数次调整方案,将三孩的居住空间得到扩容与有效利用。设计,一切以人为本。
缺点:
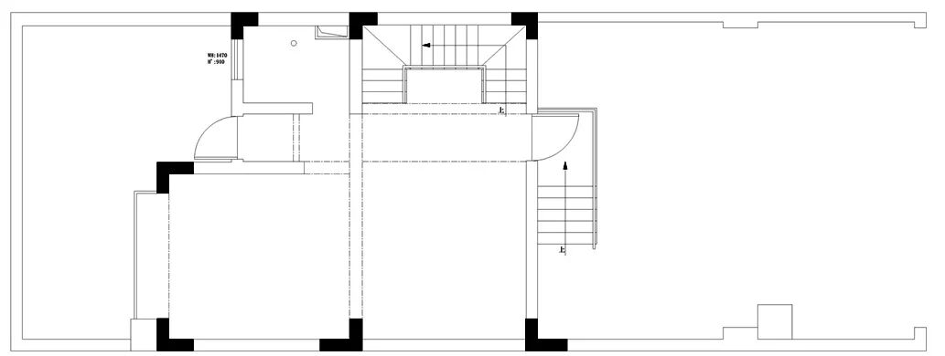
一楼餐厅都是墙体,墙体和厨房之间这个动线不顺畅。
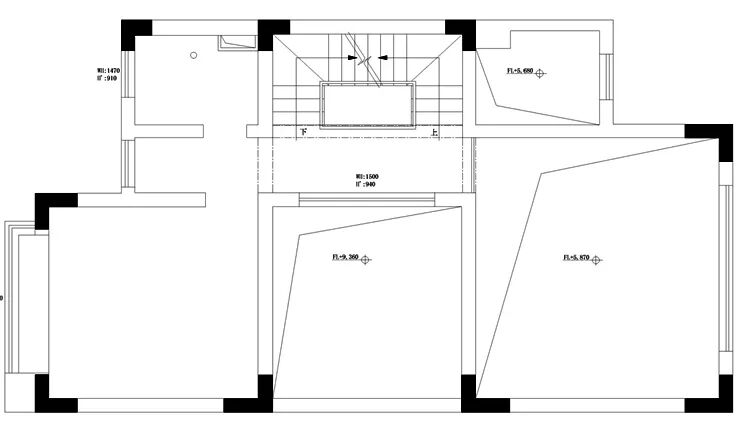
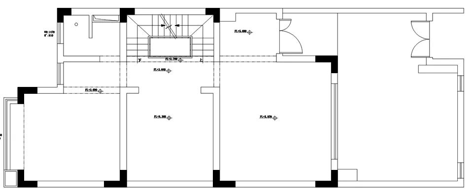
二楼南面只有一个卧室,餐厅可以隔出一个卧室来,但是没有采光,通风效果不佳。
解决方案:
一楼解决方案:就是把墙体都打掉,厨房的门也改了位置和餐厅的门直接相连,包括餐厅和客厅之间,这个墙也都打掉了,这样的话就空间感更大一些。
二楼解决方案:客户需要二楼做三个卧室,南面想做两个卧室。把原来南面这个大卧室的尺寸,进行一个调整,然后在他旁边加出一个小小房间,做成女儿房,变成了两个房间。这样的话,这两个房间都有采光。






