
同进君望位于登云路与祖冲之路交叉口,紧靠森林公园,开发商为昆山同进置业有限公司,同进君望整个小区规划为纯高层、纯大户型住区。作为整个昆山的高净值人群居住地,来自上海的春亭装饰致力于为您们提供品质服务。
因此,春亭专门成立了专案设计师,由上过CCTV《交换空间》栏目的的茅健老师带领,为各位同进君望的业主们竭诚服务。茅老师在昆山还做过设计的楼盘有森林别墅,泰鸿别墅,绿城玫瑰园,鼎园美墅,丰泽园,观林一品别墅等,有着丰富的经验,值得各位业主的信任!
|户型介绍|

四室两厅 建筑面积:233.00㎡

3室2厅 建筑面积:158.00㎡

4室3厅3卫1厨, 建筑面积约320.00㎡

4室3厅4卫1厨, 建筑面积约270.00㎡
以上是我们主要服务的几个户型,从户型图上看,这是一个非常好的购房选择,特别的适宜居住,价格上也非常的合适。同时在选择装修公司上,相信各位业主也是希望找有经验和质量能够保障的公司,而春亭,恰好符合您的全部要求。
下面可以让我来介绍一下我们公司茅健老师的一套案例。
|案例介绍|

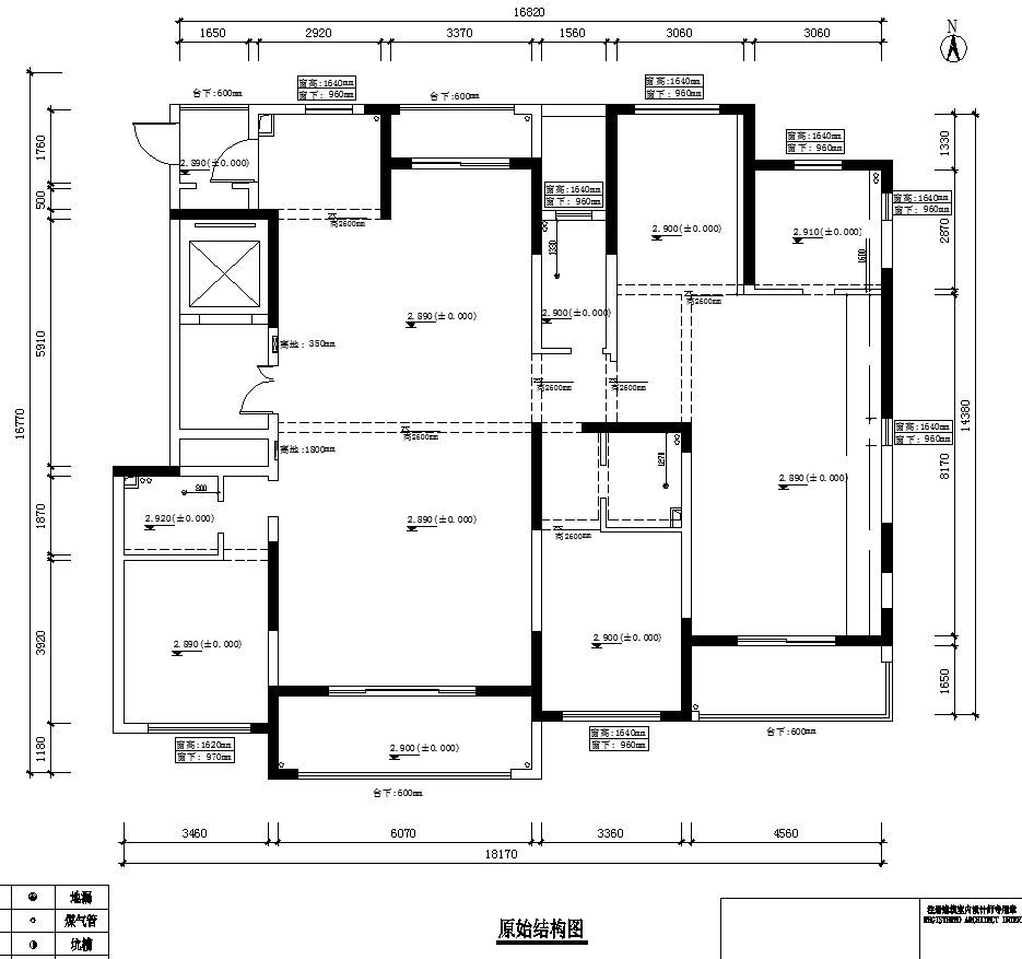
原始结构图

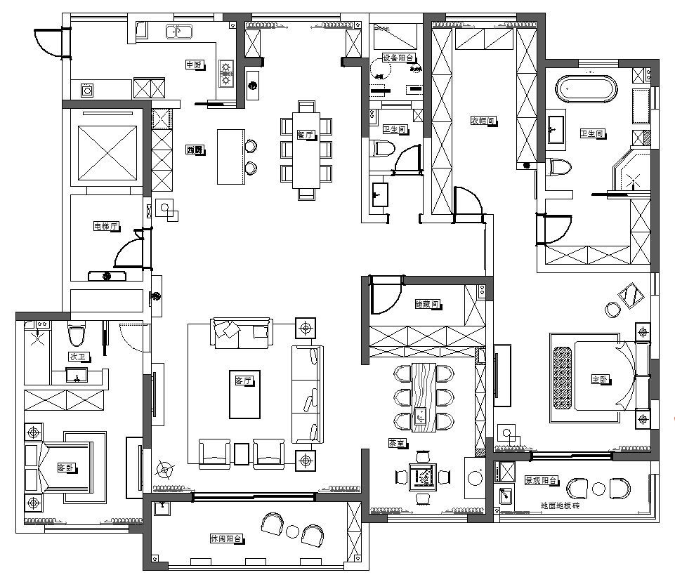
平布置图
根据业主的需要,设计师为这个新家提供了四个关键词:优雅,简洁,自然,人文情怀。 一进门映入眼帘的是一幅画,显的整个房间通透自然。整体的灰色调显现了业主的高端品质,配套的桌椅沙发与环境自然的融为一体。电视背景墙的酒精真火壁炉的加入,温馨而热闹。



主卧整体也延续了整体的灰色调,木质的地板和灰色的大床营造的居室,优雅而不失温馨。主卧的床头背景采用灰色软包,利落的线条,让空间显得更加开阔,床头柜上的台灯,精致又高级的质感不断的提升空间的整体质量,主人在床头可以打开旁侧的台灯进行阅读。阳台上搭配吊椅和绿植,活力的气息一览无余。

施工现场
|服务历程|
在这个方案的实施过程中,茅老师以及专案小组的客户经理还有工程负责人们,对于业主提出的各种需求和疑问,都一一的解决,会在服务群中发布施工日志,力求业主对春亭的服务达到满意的效果。整个服务的过程也是展示设计师们的服务责任与工作态度的体现,对每看一个客户,我们都会竭尽全力!





|同进君望金钻样板间征集“惠|
征集数量:5套
一、金钻下定礼:1000元抵用10000元施工款。
二、金钻设计礼:全额支付设计费,获赠百诺肯净水器一台。(价值988元)
三、金钻施工礼:(基装款满20万获如下礼遇)
建材礼:主材代金券5000元
包含墙地砖类、地板类、木门类、衣柜类、橱柜类几大品类(指定品牌,套餐与特价产品除外)
其中:墙地砖类满30000元可抵用1000元
地板类满30000元可抵用1000元
橱柜类满30000元可抵用1000元
衣柜类满30000元可抵用1000元
木门类满30000元可抵用1000元
本公司承诺负责本项目的团队为免检施工队&监理、专案组设计师、E0、E1级环保辅材。
样板间征用时间:2019.8.1-11.30
(*签约业主签署本协议,活动后生效日期为:10.31含主材签入时间)
|设计专案组介绍|
茅健

从事设计工作16年
中国国家注册高级设计师
编号:0803000100303634
中央电视台签约设计师
2011年~2013年度央视《交换空间》形象代言人
2010年《新闻晨报》优秀设计师大赛联体别墅类 一等奖
2011年第六届大金中国地区内装饰设计大赛艺术创意大奖
关于茅老师更多请点击

专案组的老师们都为拥有多年设计经验的设计团队,推崇以人为本,深入了解客户的心理需求。都拥有10年以上的从业时间,设计师追求新颖独到,贴近生活的设计主题,擅长将设计理念与客户的生活习惯完美融合,致力于为客户打造温馨舒适的家。
关于春亭的一些↓▶↓▶↓

|在施工艺|


|公司特色介绍|

|服务流程|

|业主证言|
以下是部分签约业主的证言,相信他们的选择吧~~
今年4月来春亭咨询,回就选择了签约,深度了解高端环保理念更坚信选择他们是对的,春亭环保品质使得我们的新家居住安然无忧!
--同进君望许女士
买了新房子后,时间就是想找一家装修公司来装饰我的新家,尽快入住,但是装修也不是小事情,对比了多家公司后,还是选择了春亭,因为之前有朋友在他们公司做过,所以考察过后就和他们签约了。
--同进君望王先生







